ROLE: Project Architect.
PROJECT: Residential. New Development.
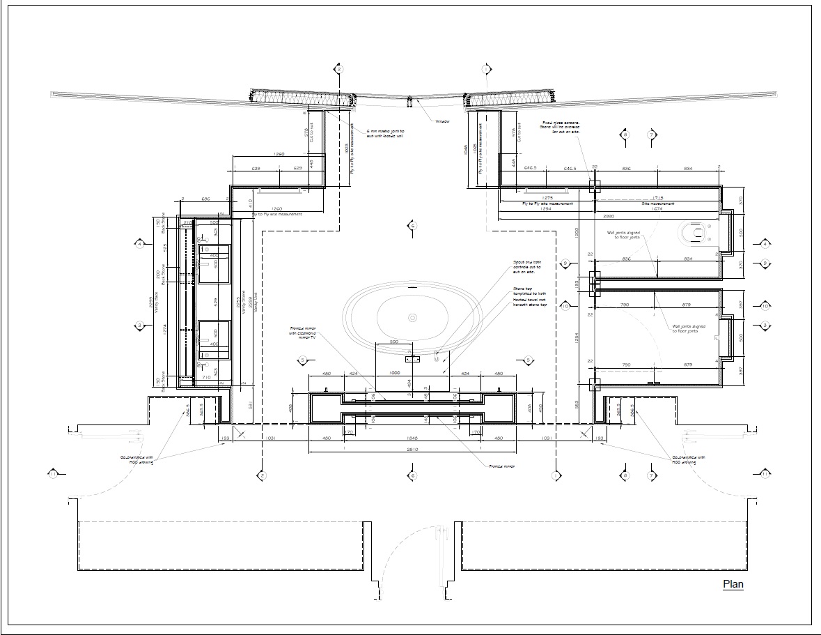
EXPERTISE: Flooring & internal Lining; Technical Design; 2D & 3D Software.
Natural stone used in high quality residential applications.
STAGES: Project coordination, technical design and construction. (UK RIBA stages 4 & 5).

DESCRIPTION:
At Harrison Goldman Studio, I had the amazing opportunity of working in a great new project that changed the skyline of central London. In this new residential skyscraper in Blackfriars, I was focused on the top floors ‘Hepworth Collection’, more spacious and luxury flats.
As part of the team, I worked on the design, details and specifications of the interiors, bathrooms and living area floors. It was a challenge to work and coordinate with a big number of professionals and subcontractors, dealing with the finest materials and developing accurate and technically demanding details.




